Rif: LP101BIS
CHIESA IN VALMALENCO
SONDRIO
Vendesi immobile adibito ad hotel posizionato in modo strategico a pochi passi dal centro paese, oltre che dagli impianti di risalita e funivia di Chiesa in Valmalenco.
Si cede compresa l'attività (licenza) di hotel, ristorante e bar.
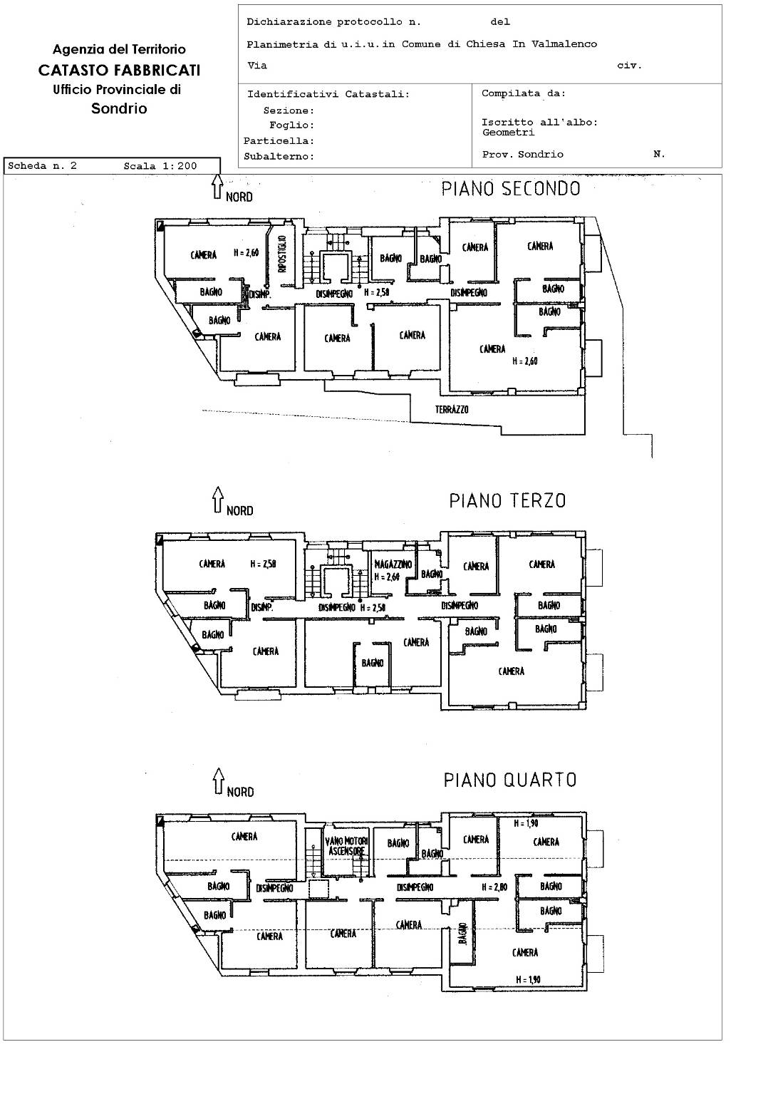
Storica struttura ricettiva ben avviata e disposta su 4 livelli, composto da doppio ingresso pedonale, servito da ascensore per un totale di 20 camere con bagno interno.
Possibilità di trasformazione in residence o b&b. Trattativa riservata
Rif. LP101BIS
Si cede compresa l'attività (licenza) di hotel, ristorante e bar.
Storica struttura ricettiva ben avviata e disposta su 4 livelli, composto da doppio ingresso pedonale, servito da ascensore per un totale di 20 camere con bagno interno.
Possibilità di trasformazione in residence o b&b. Trattativa riservata
Rif. LP101BIS







